Apartment for Rent / 2+KNT, 58 m2 Hodkovická, Praha – Kamýk

24.900 CZK per month
Total 29 photos, show all

Apartment for Rent / 2+KNT, 58 m2 Hodkovická, Praha – Kamýk

24.900 CZK per month
Description of the property:

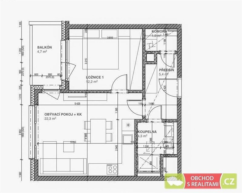
The 2+KNT apartment unit with an area of 50 m2 with a balcony of 5 m2, which is accessible from the living room and bedroom, is located in the new building of the SIJA Kamýk Project at Hodkovická 1029/3, Prague 12 / Kamýk. The apartment is located on the 3rd above-ground floor with a view of the Lhotka biotope swimming pool. All windows, equipped with triple glazing, can be shaded with external blinds with remote control. A healthy climate in the apartment is ensured by a recuperation unit.

The living room is equipped with a modern kitchen with all AEG appliances (dishwasher, induction hob, oven, combined refrigerator, extractor hood) and a white chest of drawers. There is a large wardrobe in the bedroom. The washing machine with dryer is in the practical chamber. The bathroom has a large shower. The floor covering in the rooms is vinyl.

The apartment has a 3 m2 cellar and a garage, which can be equipped with a wallbox for charging an electric car upon agreement. In the basement of the house there is the possibility of using a bicycle / stroller room for storing bicycles and a separate room for washing bicycles / dogs. To increase security and comfort, the house is equipped with video intercoms, through which it is also possible to open the garage entrance.

There is a children's and workout playground in the courtyard. There are complete civic amenities in the vicinity of the house, close to the Novo Plaza shopping mall, the Lhotka biotope swimming pool.
The Novodvorská or Lhotka public transport stop is 3 minutes from the house (including night lines) with good connections to the Kačerov metro line C or Smíchovské nádraží metro line B.

Special offer from the owner: a voucher for moving services from a professional company.

Rent 24.900 CZK / month + services in the house 3.500 CZK / month + transfer of the electricity meter to the tenant (approx. 1.000 CZK). Security deposit 35.000 CZK, real estate agency fee 24.900 CZK.

Type of property:
Flat
Type of flat:
2+kk
No. of real est.:
979704
Address:
Praha
Praha 12
Hodkovická 115
Operation:
Rent
Property:
personal
Floor area:
58 m2
Balcony area:
5 m2
Basement area:
3 m2
Storey:
Third storey
State of the object:
New building
Construction:
Bricked
PENB:
B - Velmi úsporná
PENB type:
Decree č. 264/2020 Sb
It is shown that the GPS coordinates:
50° 01' 18.717"N, 14° 26' 23.631"E